Zmiany w ruchu przy grajewskim cmentarzu od 31 października
fot. KPP Grajewo
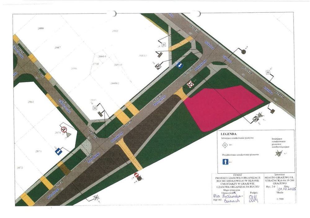
Od 31 października do 3 listopada w rejonie cmentarza w Grajewie obowiązywać będzie tymczasowa organizacja ruchu. Wprowadzony zostanie ruch jednokierunkowy i wyznaczone miejsca dla służb. Kierowcy proszeni o stosowanie się do znaków i poleceń policji.
REKLAMA
Zmiana organizacji ruchu w rejonie cmentarza
Od 31 października godz. 8.00 do 3 listopada godz. 8.00 wprowadzona zostanie czasowa organizacja ruchu w okolicach cmentarza w Grajewie. Kierowcy i piesi proszeni są o zachowanie ostrożności.
Szczegóły
- Ruch jednokierunkowy na ul. Pułaskiego; wjazd możliwy od ul. Szkolnej, na odcinku 350 m do skrzyżowania z ul. Bema.
- Przy skrzyżowaniu ul. Szkolnej z ul. Cmentarną i ul. Przemysłową wyznaczono miejsce dla Policji i organizatora uroczystości.
- Zmiany będą oznakowane odpowiednimi znakami drogowymi.
- Prosimy stosować się do poleceń funkcjonariuszy kierujących ruchem.
Zmiany obowiązują w podanym terminie. Prosimy o zwrócenie uwagi na oznakowanie i instrukcje służb. - KPP Grajewo
Pliki do pobrania
Dostępne będą mapy i szczegóły organizacji ruchu do pobrania u organizatora.
źródło informacji: KPP Grajewo / policja.pl
PRZECZYTAJ JESZCZE









